Пятно застройки - что это такое на градостроительном плане, что входит в ПЗ на участке
Процесс застраивания – не только весьма затратное занятие, оно требует знаний в области законодательства, так как нарушение установленных правил может повлечь серьезные неприятности. Собственность на земельный участок еще не является гарантией, что на нем можно строить жилой дом и подсобные постройки, как того душа пожелает. Поэтому первым этапом строительства является планировка территории с учетом пятна застройки (ПЗ). Тогда можно быть уверенным, что при оформлении права собственности на строение не возникнет проблем и противоречий с регистрирующими государственными органами.
К сожалению, многие владельцы пренебрегают начальными этапами стройки, такими как геодезические исследования грунта, планировка, разработка проекта. Но эта «экономия» впоследствии приводит к лишним затратам на судебные разбирательства, штрафы, ремонты. Поэтому прежде возводить любое строение, стоит проконсультироваться со специалистами и юристами. В действующих нормативах определены расстояния между объектами, этажность и множество других нюансов.

Что такое пятно застройки
Основным документом, регулирующим процесс застаивания, является градостроительный план земельного участка (ГПЗУ). На нем красными линиями обозначаются земли общего пользования, отведенные, например, под дороги, здания общественного назначения или другие объекты. Названы они так из-за цвета, присутствующего на кадастровой карте.
Кроме того, на этой схеме определены границы наделов. И часто бывает, что частные землевладения соприкасаются не только между собой, но и с территориями муниципального назначения, например, площадями, отведенными под магазины, школы, стоянки и т.п.
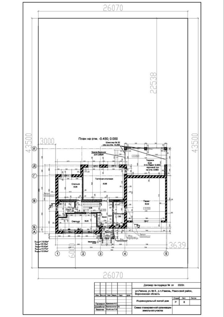
Что такое пятно застройки на градостроительном плане? Это земельный надел, на котором владелец может осуществлять размещение строительных объектов. На схеме все землевладения имеют разграничение.
Проще всего посмотреть красные линии, ограничивающие вашу землю, изучив Публичную кадастровую карту, по данным Росреестра, или проект планировки территории (документы по межеванию). Согласно этим данным, определяются основные размеры места под строительство, оформляются документы на собственность и разрешительные бумаги.
Лучше определить границы участка заранее, чтобы во время стройки не выйти за красные линии. Так как их перенос возможен только по согласованию с департаментом по архитектуре. Сооружение могут вообще счесть незаконным и обязать снести.

Что значит пятно застройки (ПЗ), его особенности
Так как планировка наделов осуществляется еще в процессе межевания, основной специфической чертой ПЗ является стабильность его размеров. Это определено красными линиями на кадастровой карте.
Изменение границ, как в большую, так и в меньшую сторону требует многочисленных согласований и разрешений. Поэтому при планировке следует четко определиться с расположением участка непосредственно на местности еще до начала стройки и обозначить контрольные точки по ограничению территории.
Иногда, недостаточно разбираясь в тонкостях проектирования, под термином «пятно застройки» понимают более узкое понятие – проекцию на плане землевладения дома или гаража. Но, по сути, ПЗ включает в себя все площади, пригодные для размещения построек, как надземных, так и подземных.
Преимущества планирования застраивания с привязкой к кадастровой карте
Как уже упоминалось выше, строительство требует проведения предварительного этапа. Нельзя возводить здание там, где нравится. Оптимально провести геологические изыскания, чтобы определить наличие грунтовых вод, специфику почвы. Это позволит избежать проблем с подтоплением подземных частей строения (подвала, цокольного этажа) и проседания сооружения.
Не лишним будет уточнить план подводки коммуникаций, оценить климатические характеристики земли. Тогда вопрос, как определить пятно застройки на участке решится наиболее оптимально. Размещение дома и подсобных построек не вызовет затруднений.

Расчет площади ПЗ
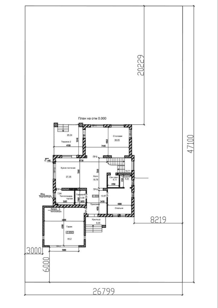
Размеры землевладения – величина неизменная. Поэтому и планировку проводят строго в его границах. Но существует и более узкое понятие ПЗ – непосредственно определение проекции здания.
Именно с определения S объектов (в м2) и начинается процесс планирования. Еще из курса школьной геометрии любой человек знает, как выполнить расчет для простой формы квадрата или прямоугольника, просто перемножив стороны. В строительстве под этими величинами подразумевается ширина проекции – размеры красной линии, идущей по фасаду, и глубина проекции – длина боковой стены.
Нужна наша консультация?
Если при работе с сайтом или в процессе выбора проекта у вас возникли вопросы, обратитесь за помощью к нам
Проектировщики часто сталкиваются и с более сложными формами. Если пятно застройки многогранное, как рассчитать площадь сооружения? В этом случае размеры определяются внешним контуром стен без учета отмостки.
ВАЖНО: следует помнить, что при планировке нужно учитывать и все выступающие части здания (крыльцо, террасу, навес для машины и тому подобное).
Даже при возведении дома на опорах ПЗ считается земля, находящаяся под строением.
Основным правилом при планировке участка является грамотное размещение будущих капитальных сооружений. Это позволяет с наименьшими затратами решить ряд задач:
- выбрать наиболее подходящий проект;
- оптимально определить наиболее подходящее местоположение жилища с учетом розу ветров, освещенности и влажности;
- рассчитать теплоизоляционные характеристики стеновых конструкций;
- снизить расходы по земельным работам (рытье котлована, монтаж фундамента).
При этом следует учесть, что помимо соблюдения границ землевладения существует ряд нормативных показателей, определяющих место под стройку.

Строительные нормы пятна застройки
Любое размещение объектов и на частном наделе, и в границах муниципальной собственности регулируется рядом законодательных нормативов и актов. Поэтому при планировании очень важно знать все нюансы и специфику ограничений. Например, ФЗ РФ № 123-ФЗ «О пожарной безопасности» регламентирует минимальное расстояние между строениями на участке, санитарные нормы определяют месторасположение объектов канализации и источников питьевой воды (так, строительство уборной менее чем в 8 м. от колодца или скважины будет являться серьезным нарушением).
Законодательный акт
Помимо основных решений, регламентирующих застраивание городских и сельских территорий, утверждение планов и прочих согласований, данный кодекс регулирует права и обязанности частных застройщиков.
Планировка надела, это, по сути, рассчитанное пятно застройки для каждого строения, и определение его расположения. В Градостроительном Кодексе РФ четко прописаны параметры для выбора места новых капитальных строений, такие как:
- составление плана площадей;
- проведение экспертизы проектной документации для получения разрешений;
- минимальные отступы от границ участка и прочее.
СНиП 11-3-99
Строительные нормы и правила используются для применения общих положений, принятых при возведении зданий и сооружений. Вышеописанный документ касается проектно-планировочной документации. Если проекты или планы застраивания не соответствуют правилам, то в разрешении на стройку контролирующие органы могут отказать.

СНиП 31.02.2001
Требования этого документа касаются непосредственно характеристик возводимого частного дома. В данных правилах определены:
- минимальные показатели площадей жилых и нежилых помещений;
- порядок возведения строений;
- основы пожарной безопасности и многое другое.
Эти и ряд экологических и санитарных нормативных документов являются основными актами, регламентирующими проектирование и строительство частных построек. Рассмотрим подробнее ограничения, которые следует учитывать еще на этапе планировки будущего жилого строения.
Что входит в пятно застройки на участке ИЖС: характеристики
В данном случае под ПЗ подразумевается именно параметры самого жилого дома, и ориентируясь на приведенную выше нормативную документацию, следует обратить внимание на следующие характеристики:
Определение общей площади здания
Расчет производится путем суммирования размеров всех жилых и нежилых помещений, где имеется отопление.
ВАЖНО: необходимо учитывать не только явные комнаты, санузлы, кухню и коридоры, но и встроенные шкафы, теплые кладовые и тамбуры. Максимальные размеры, установленные для ИЖС – 1 500 м2.

Этажность
Для частных построек надземная часть не должна превышать трех этажей. Но в нее не входит мансарда, подвал или цокольный этаж, что позволяет существенно увеличить жилое помещение.
Количество комнат/санузлов
В СНиП прописаны только минимальные размеры длины и ширины комнат, по максимуму и количеству ограничений нет. В идеале количество санузлов должно совпадать с числом спальных комнат, но санитарные нормы допускают наличие единственного полноценного объекта санитарно-гигиенического назначения:
- туалет и ванная комната;
- туалет и душевая;
- совмещенный санузел.
Размеры сооружения
Габариты жилого строения ограничены общей площадью и пятном застройки, определяемым границами участка. Но при этом следует учесть ограничения по размещению.
Размещение объектов
При планировке землевладения следует учесть ряд минимальных расстояний до других строений. Законодательно установлены следующие параметры:
- Дом должен отстоять от границ соседней территории или проезда не менее чем на 3 м.
- Жилой объект должен быть размещен не ближе, чем в 5 м от дороги.
- Сараи для содержания животных должны быть не ближе 4 м от межи.
- Уличные туалеты размещены не ближе 12 м от границ с соседними землевладениями.
Все это можно уточнить в СНиП 30-02-97 и СП 42.13330.2016.

Перенос пятна застройки на земельный участок
После планировки, выбора и утверждения проекта проводятся работы по переносу места расположения объектов непосредственно на почву. Чаще всего подготовительный этап строительства состоит из нескольких мероприятий:
- Непосредственно подготовка площадки, включающая разравнивание, укрепление грунта, удаление дерна.
- Определение угловых точек строения по координатам (с привязкой к красным линиям).
- Разметка периметра дома и подсобных помещений.
Чаще всего планировку проводят с помощью колышков. Между ними натягивают шнуры, ограничивающие габариты.
ВАЖНО: после разметки при помощи ориентиров ПЗ постройки следует проверить диагонали разметки, иначе есть опасность построить сооружение с искривленными углами. А это проблемы при дальнейшем возведении кровли и внутренней отделки.
Выход за красные линии
По сути, пятно застройки определяется границами участка. Но иногда, уже после возведения сооружения, выясняется, что оно оказалось за пределами межи. Так как это является нарушением СНиП, с государственной регистрацией возникают проблемы.
В этом случае можно поступить следующим образом:
- Собственник подал «Уведомление о начале строительства», но в процессе параметры изменились. В этом случае придется оформлять заявление о получении разрешения на отклонения. И только после утверждения изменений подавать «Уведомление о завершении строительства». Тогда при отказе в регистрации есть основания обратиться в суд.
- Можно зарегистрировать дом как самовольную постройку (то есть признаться в нарушениях) через суд, но в этом случае последствия могут быть весьма негативными – от штрафа до предписания на снос.
- Если собственник не планирует продавать, дарить или передавать здание (то есть завершать законодательно значимые действия), можно зарегистрировать объект как нежилую постройку.
Но лучше заранее спланировать все строения на участке так, чтобы не вызывать нареканий у органов, регистрирующих право собственности.

Подведем итоги
Как видно из вышеприведенных материалов, знание терминологии, ПЗ – что это такое в строительстве, позволяет не только правильно распланировать застройку территории, но избежать серьезных проблем с оформлением дома в дальнейшем.
Собственникам земли в коттеджных поселках немного проще, так как единый план застраивания для таких образований утверждается соответствующим департаментом, и месторасположение построек уже обозначено. Тем же, кто решил возводить сооружение самостоятельно, необходимо тщательно ознакомиться со всеми правилами и ограничениями, предусмотренными для индивидуальных застройщиков.
Следует различать не только границы надела, чтобы определить, достаточно ли места, не попадет ли объект за красные линии, но и ПЗ самого здания (для расчета его площади и переноса на почву). Кроме того, нужно четко определить место размещения каждого строения на территории, так как существует ряд нормативов по расстоянию до межи, между постройками и общественными коммуникациями.
Только соблюдение всех нормативов и ограничений еще на этапе оформления проектной документации, может устранить все проблемы при оформлении уже построенного сооружения и избежать санкций со стороны контролирующих органов.
Вопрос-ответ
Как определить ПЗ дома на участке?
Прежде всего следует убедиться, что границы надела совпадают с данными ЕГРН и кадастровым планом. На публичной кадастровой карте красными линиями отмечена разбивка территории на отдельные объекты. С учетом расстояний до межи с соседями, дорогами и проездами и определяется границы стройки.
Входит ли крыша в пятно застройки?
При определении S строения его площадь рассчитывается как горизонтальная проекция цоколя (без отмостки). То есть крыша не входит в ПЗ, но при планировании постройки следует учитывать СНиП 2.08.01-89 в котором прописано, что расстояние от крайней точки свеса крыши до границы землевладения не должно быть менее 1 м. А если свесы превышают 0,5 м., то такое расстояние увеличивается до 1,5 м.
Какие нормы определяют ПЗ?
Основным законодательным актом, определяющим параметры разрешенного строительства, является ГК РФ. Кроме того, ряд ограничений и норм прописан в Градостроительном регламенте. Любые строительные объекты еще на этапе планировки участка нужно размещать с учетом СНиП и соблюдения правил противопожарной безопасности и санитарных норм. Нарушения могут привести к плачевным последствиям: от штрафов до предписания о сносе постройки.














